Проектирование и строительство частных домов в Беларуси
Проектирование и строительство
частных домов в Беларуси

Дизайн-проект кафе

Компания Perfect Project House специализируется на архитектурном проектировании и строительстве и предлагает клиентам заказать индивидуальные проекты как частных объектов, так и помещений коммерческого назначения в Минске и Минском районе. Одной из услуг является индивидуальное проектирование кафе по выгодной и привлекательной стоимости. Проектирование заведений общественного питания является специфической задачей с множеством нюансов, поэтому мы рекомендуем обратиться к профессионалам.

После того как вы заполните данные — PDF-документ загрузится автоматически. По номеру телефона Вы получите персональный доступ

Преимущества проекта кафе под ключ

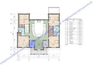
Фото проекта кафеТо, насколько комфортным, функциональным и эстетичным будет заведение, напрямую влияет на лояльность клиентов, средний чек и выручку в целом. Наша компания разрабатывает проекты помещения кафе, которые отличаются современным дизайном, высоким качеством и короткими сроками. Что в себя включает проектирование заведения общественного питания:

  1. Разработку общей концепции кафетерия;
  2. создание объемно-планировочных решений;
  3. выбор и расстановку технического оборудования;
  4. оказание помощи при согласовании проекта в СЭС.

Обращаясь в нашу компанию, вы получаете несколько вариантов проектировочных решений, монтажные планы с привязкой систем оборудования к точкам коммуникаций, пояснительную записку для строительной бригады, а также спецификацию с ценами на необходимые материалы и оборудование. Также мы соблюдаем индивидуальные требования при разработке плана кафе:

  1. учитываем санитарно-эпидемиологические нормы и требования пожарной безопасности;
  2. используем экологически-чистые материалы, оборудование и технику работы;
  3. выбираем износостойкие и долговечные материалы, способные выдержать большую проходимость клиентов;
  4. грамотно подходим к вопросу использования естественного и установке искусственного освещения;
  5. гармонично комбинируем современные тенденции и корпоративный стиль заведения;
  6. уделяем особое внимание входной группе или фасадам здания;
  7. соблюдаем высокую скорость работы, поскольку каждый день простоя кафе негативно отражается на прибыли заведения.

Стоимость разработки проекта строительства кафе в Минске

Если вас заинтересовала цена проекта строительства кафе, обращайтесь в компанию Perfect Project House. Для этого воспользуйтесь формой обратной связи на сайте или позвоните по номеру +375 (29) 122 66 64. Менеджер обязательно даст ответы на любые вопросы, озвучит цены и пригласит в офис для личной беседы в целях обсуждения проекта и дальнейшего сотрудничества.

Рассчитайте стоимость индивидуального проекта А ТАКЖЕ СТОИМОСТЬ СТРОИТЕЛЬСТВА ВАШЕГО ОБЪЕКТА
ПРОЙДИТЕ ТЕСТ ИЗ 6 ВОПРОСОВ И ПОЛУЧИТЕ ВСЕ 3 ПОДАРКА ВЫГОДА ДО 1500 РУБ
Рассчитать и подобрать проект
Стоимость Проекта/строительства
ваша скидка:
1%
на разработку индивидуального проекта
33% выполнено

выберите этажность дома

будет ли цокольный этаж?

укажите общую площадь

укажите общую площадь
Площадь, м2

выберите фундамент

выберите тип стен

выберите кровлю

выберите отделку фасада

ваши ответы:

ориентовочная стоимость строительства

2555000 $
Получите подборку проектов + индивидуальный расчет по Вашим параметрам уже через 15 минут
Приезжайте к нам в офис прямо сейчас
График работы: Пн-Пт 9.00-13.00, 14.00-18.00, Сб-Вс-выходной.
Остались вопросы
+375291226664 Отдeл продаж
+375445321772 Партнерам
Присоединяйтесь к нам в социальных сетях
адрес: г. Минск ул. Пономаренко 35А офис 414 , ст. метро Пушкинская
Остались вопросы
+375291226664 Отдeл продаж
+375445321772 Партнерам
адрес: г. Минск ул. Пономаренко 35А офис 414 , ст. метро Пушкинская
мы в социальных сетях