Проектирование и строительство частных домов в Беларуси
Проектирование и строительство
частных домов в Беларуси

Проект гостевого дома

Компания по проектированию и строительству частных и коммерческих объектов Perfect Project House предлагает заказать проект гостевого домика под ключ в Минске по привлекательной стоимости на рынке. Наша команда создает индивидуальные проекты, которые отличаются яркой уникальностью, повышенным комфортом, эргономичностью и безопасностью. О преимуществах и особенностях проектирования гостевых домиков расскажем далее.

После того как вы заполните данные — PDF-документ загрузится автоматически. По номеру телефона Вы получите персональный доступ

Что такое проект гостевого домика

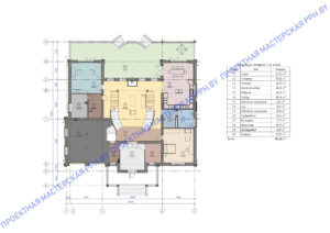
Эскиз проекта гостевого домикаОтличным вариантом для обладателей больших участков является возведение гостевого домика неподалеку от коттеджа. Выбор решения будет зависеть от бюджета заказчика, площади территории, личных пожеланий клиента. Это может быть как маленькая постройка без отопления и канализации для ночлега в теплое время года, так и полноценный домик со всеми удобствами, вторым этажом или мансардой.

Преимущества домика для гостей

  1. Уединение и комфорт – гости в любое время могут отойти от шумных застолий и вечеринок в домик, чтобы отдохнуть, выспаться или поработать. Такое решение позволит избежать проблем и недопониманий, связанных с образом жизни или других особенностей. К тому же, гостям будет приятно переночевать в «собственном доме», не принося дискомфорт ни себе, ни владельцам участка;
  2. Презентабельность – гостевой домик является одним из способов продемонстрировать финансовое благополучие владельцев недвижимости. Повышенный комфорт увеличивает цены на жилье и возводит его в категорию элитного жилья;
  3. Длительный отдых – при наличии дополнительной постройки вы можете пригласить гостей на несколько недель, а то и месяцев. Это никак не повлияет на ваш привычный образ жизни, но позволит весело и плодотворно провести время в кругу близких людей;
  4. Гостевой дом с баней – совмещение гостевого дома с баней является решением сразу нескольких задач. Таким образом вы рационально используете территорию, выгодно решаете вопрос с отоплением и спальными местами.

Создавая индивидуальные проекты современных гостевых домов, важно грамотно продумать систему отопления, гидроизоляции, канализации, освещения и др. Жилье должно соответствовать правилам пожарной безопасности, быть практичным, функциональным и комфортным для проживающих.

Стоимость разработки проекта строительства гостевого домика

Цена проекта строительства гостевого дома будет зависеть от его вида, площади, комплектации. Чтобы узнать подробнее, оставьте заявку с помощью формы обратной связи на сайте или позвоните по номеру телефона +375 (29) 122 66 64. Менеджер предоставит ответы на любые интересующие вопросы.

Рассчитайте стоимость индивидуального проекта А ТАКЖЕ СТОИМОСТЬ СТРОИТЕЛЬСТВА ВАШЕГО ОБЪЕКТА
ПРОЙДИТЕ ТЕСТ ИЗ 6 ВОПРОСОВ И ПОЛУЧИТЕ ВСЕ 3 ПОДАРКА ВЫГОДА ДО 1500 РУБ
Рассчитать и подобрать проект
Стоимость Проекта/строительства
ваша скидка:
1%
на разработку индивидуального проекта
33% выполнено

выберите этажность дома

будет ли цокольный этаж?

укажите общую площадь

укажите общую площадь
Площадь, м2

выберите фундамент

выберите тип стен

выберите кровлю

выберите отделку фасада

ваши ответы:

ориентовочная стоимость строительства

2555000 $
Получите подборку проектов + индивидуальный расчет по Вашим параметрам уже через 15 минут
Приезжайте к нам в офис прямо сейчас
График работы: Пн-Пт 9.00-13.00, 14.00-18.00, Сб-Вс-выходной.
Остались вопросы
+375291226664 Отдeл продаж
+375445321772 Партнерам
Присоединяйтесь к нам в социальных сетях
адрес: г. Минск ул. Пономаренко 35А офис 414 , ст. метро Пушкинская
Остались вопросы
+375291226664 Отдeл продаж
+375445321772 Партнерам
адрес: г. Минск ул. Пономаренко 35А офис 414 , ст. метро Пушкинская
мы в социальных сетях