Проектирование и строительство частных домов в Беларуси
Проектирование и строительство
частных домов в Беларуси

Архитектурный проект

Компания Perfect Project House готова разработать архитектурный проект дома в соответствии со строительными и законодательными нормами. Кроме того, в наши услуги входит архитектурный проект квартиры, который необходим для капитального ремонта или перепланировки.

После того как вы заполните данные — PDF-документ загрузится автоматически. По номеру телефона Вы получите персональный доступ

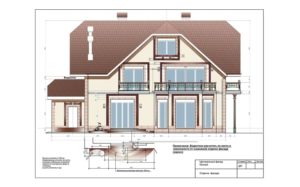
Эскиз архитектурного проектаАрхитектурный проект – ключевая составляющая документов, необходимых для строительства дома. Он объединяет ряд чертежей, которые нужны для согласования возведения объекта у главного архитектора конкретного района. Разработка решений, схем и генплана – обязательное условие для получения паспорта застройщика.

Что входит в архитектурный проект

Разработка архитектурного проекта под ключ включает в себя перечень обязательных элементов. Пакет документов состоит из:

  • пояснительной записки;
  • поэтажного плана с экспликацией помещения;
  • разреза дома;
  • фасадов дома в осях;
  • привязки схем строения к кадастровому плану участка.

Кроме того, в Минске может потребоваться привязка проекта к топосъемке, схемы ограждения и цветовые решения фасада здания. Ключевые элементы, необходимые для реализации работы, будут обсуждаться при личной встрече и после выезда прораба на объект.

Преимущества разработки архитектурных проектов под ключ

Заказать архитектурный проект жилого дома – значит обезопасить себя от неизбежных ошибок в строительстве. Создание нужной документации позволит грамотно спланировать строительство и сохранить бюджет. Неверно возведенные конструкции, неправильно проложенные инженерные сети, выполненные ненужные работы – все это ударит по карману, а также потратит время и нервы.

Отметим, что проектирование – задача не только технического содержания, но и эстетического. Наши специалисты создают уникальные проекты домов, в которых учтены пожелания будущих владельцев, современные тренды в архитектурном и интерьерном дизайне.

Чтобы сделать архитектурный проект частного дома качественно и «безболезненно», нужна сплоченная команда единомышленников, ответственный подход и богатый интеллектуальный капитал. Команда Perfect Project House – это:

  • 6 лет опыта работы в проектировании и строительстве;
  • 18 высококвалифицированных специалистов с дипломами и сертификатами о повышении квалификации;
  • 1600 успешно реализованных архитектурных и дизайнерских решений частных домов и квартир;
  • 136 возведенных объектов коммерческого и частного назначения.

Как заказать разработку архитектурного проекта в Минске

Для осуществления заказа оставьте заявку на сайте нашей компании или позвоните по телефону +375 29 122 66 64. С вами свяжется менеджер, обсудит существующие расценки, особенности создания сметы и, при необходимости, вышлет прайс-лист на почту или любой удобный мессенджер.

Стоимость архитектурного проектирования

Стоимость разработки архитектурного проекта будет согласована лично, исходя из особенностей будущей постройки и необходимых документов. Цена фиксируется в договоре и не меняется до окончания работы.

Мы заботимся о клиентах, поэтому предлагаем полный комплекс услуг, который сохранит ваше время и позволит заниматься тем, что вы любите. А наша команда, в свою очередь, выполнит то, что любим мы – создадим для вас дом, который станет местом вашей силы!

Рассчитайте стоимость индивидуального проекта А ТАКЖЕ СТОИМОСТЬ СТРОИТЕЛЬСТВА ВАШЕГО ОБЪЕКТА
ПРОЙДИТЕ ТЕСТ ИЗ 6 ВОПРОСОВ И ПОЛУЧИТЕ ВСЕ 3 ПОДАРКА ВЫГОДА ДО 1500 РУБ
Рассчитать и подобрать проект
Стоимость Проекта/строительства
ваша скидка:
1%
на разработку индивидуального проекта
33% выполнено

выберите этажность дома

будет ли цокольный этаж?

укажите общую площадь

укажите общую площадь
Площадь, м2

выберите фундамент

выберите тип стен

выберите кровлю

выберите отделку фасада

ваши ответы:

ориентовочная стоимость строительства

2555000 $
Получите подборку проектов + индивидуальный расчет по Вашим параметрам уже через 15 минут
Приезжайте к нам в офис прямо сейчас
График работы: Пн-Пт 9.00-13.00, 14.00-18.00, Сб-Вс-выходной.
Остались вопросы
+375291226664 Отдeл продаж
+375445321772 Партнерам
Присоединяйтесь к нам в социальных сетях
адрес: г. Минск ул. Пономаренко 35А офис 414 , ст. метро Пушкинская
Остались вопросы
+375291226664 Отдeл продаж
+375445321772 Партнерам
адрес: г. Минск ул. Пономаренко 35А офис 414 , ст. метро Пушкинская
мы в социальных сетях