Проектирование и строительство частных домов в Беларуси
Проектирование и строительство
частных домов в Беларуси

Проект дома-дворца в классическом стиле PPHouse 700-01

3D панорама
Отзыв клиента
  • Общая площадь: 564.9 м2
  • Количество этажей: 2
  • Высота дома: 11.5 м
  • Ширина дома: 21.4 м
  • Длина дома: 24 м
  • Площадь кровли: 474
  • 4
    8

Строительство:

BYN +
USD:
EUR:
RUB:
KZT:
Планировка
Фасады
Описание

Роскошный двухэтажный коттедж с бело-кремовыми фасадами выполнен в классическом стиле. Дизайнер разрабатывал уникальный проект с учетом пожеланий заказчика к архитектурным формам. Крыльцо и открытые террасы второго этажа украшают высокие белые колонны и перила с балясинами. Из панорамных окон в пол открывается вид на облагороженный сад.
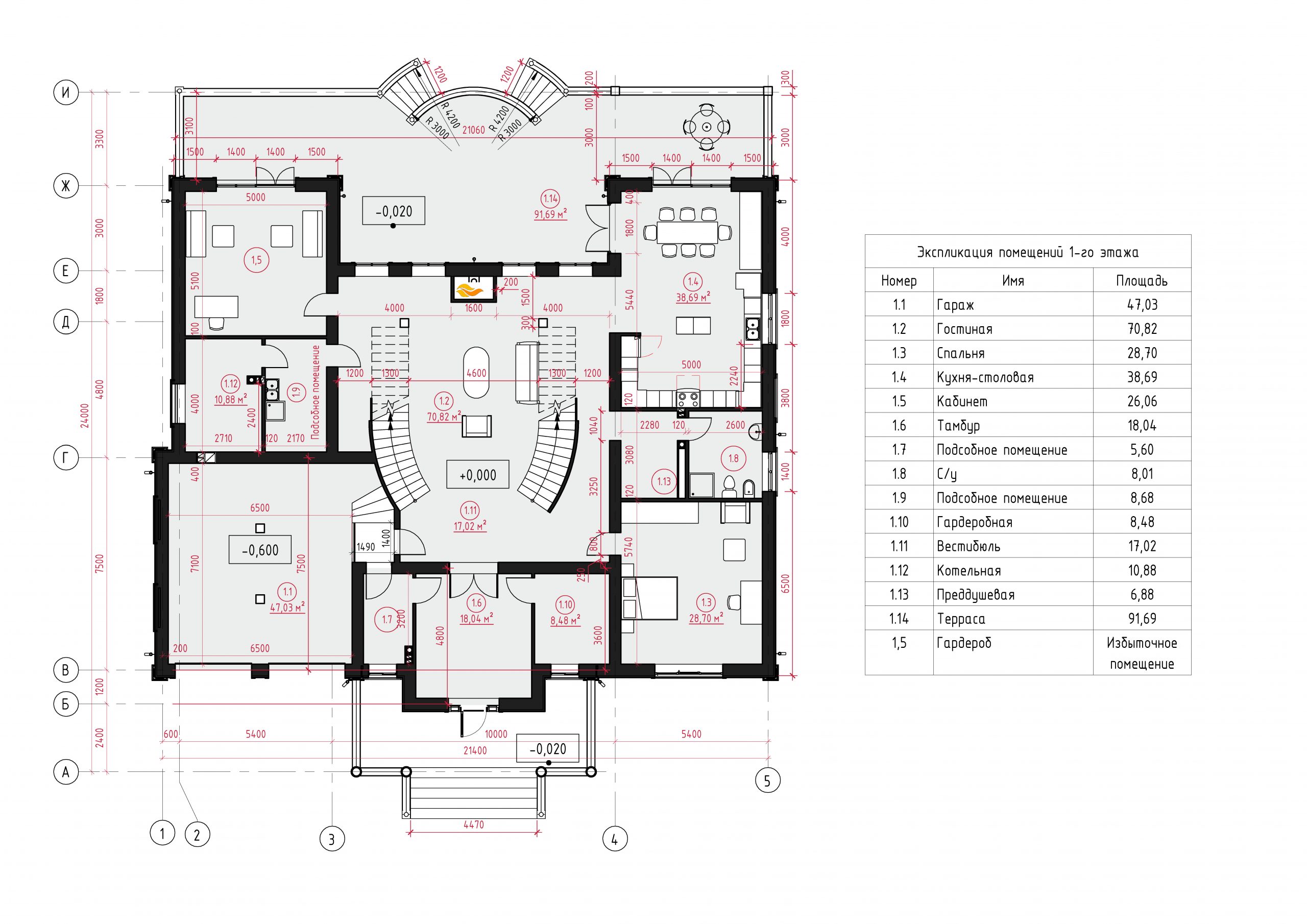
Первый этаж разделен на две части просторным холлом с двумя лестницами на второй этаж. С правой стороны располагается объединенная кухня-столовая, гостиная, спальня, кабинет, с левой – гараж на два машиноместа с автоматическими подъемными воротами, подсобные помещения для хранения вещей и хозяйственных нужд.
Второй этаж включает общую комнату для сбора всей семьи, четыре спальни с гардеробными, расположенные по обеим сторонам холла, санузлы, кладовую и постирочную. Одна из спален имеет собственный выход на открытую террасу.

Рассчитайте стоимость проекта

- общие данные
- план посадки дома на участок
- план этажей
- кладочный план стен и перегородок этажей
- маркировочный план окон, дверей, этажей
- фасады
- цветовое решение фасадов
- разрезы
- план кровли

- общие данные
- фундамент
- план фундамента
- сечения фундамента
- перемычки
- схема расположения перемычек
- сечения перемычек
- монолитный пояс
- план монолитного пояса
- сечения монолитных поясов и балок
- перекрытие
- план плит перекрытий
- сечения монолитных участков перекрытия
- стропильная система
- схема расположения стропил
- план подстропильной системы
- развёртки стропильных ферм
- разрезы стропильной системы

- водоснабжение
- канализация
- отопление
- вентиляция и кондиционирование Архитектурное освещение Неотъемлемый элемент любого объекта, культурного наследия и даже частных домов и резиденций.
Без него любая задумка архитектора, очевидная при дневном свете, теряется, как только наступают сумерки.
С помощью световой концепции можно не просто создать ночной облик строения, а привнести новую идею, подчеркнуть архитектурные особенности здания, как будто надеть новое «платье» на фасад

Неотъемлемый элемент любого объекта, культурного наследия и даже частных домов и резиденций.
Без него любая задумка архитектора, очевидная при дневном свете, теряется, как только наступают сумерки.
С помощью световой концепции можно не просто создать ночной облик строения, а привнести новую идею, подчеркнуть архитектурные особенности здания, как будто надеть новое «платье» на фасад

Разработка дизайна интерьера

Стоимость полного проекта:
от 0 $
ИНДИВИДУАЛЬНЫЙ ПРОЕКТ ДОМА в подарок
Стройте с нами и мы подарим Вам архитектурный проект БЕСПЛАТНО
Забрать подарок
Рассчитайте стоимость индивидуального проекта А ТАКЖЕ СТОИМОСТЬ СТРОИТЕЛЬСТВА ВАШЕГО ОБЪЕКТА
ПРОЙДИТЕ ТЕСТ ИЗ 6 ВОПРОСОВ И ПОЛУЧИТЕ ВСЕ 3 ПОДАРКА ВЫГОДА ДО 1500 РУБ
Рассчитать и подобрать проект
Приезжайте к нам в офис прямо сейчас
График работы: Пн-Пт 9.00-13.00, 14.00-18.00, Сб-Вс-выходной.
Остались вопросы
+375291226664 Отдeл продаж
+375445321772 Партнерам
Присоединяйтесь к нам в социальных сетях
адрес: г. Минск ул. Пономаренко 35А офис 414 , ст. метро Пушкинская
Остались вопросы
+375291226664 Отдeл продаж
+375445321772 Партнерам
адрес: г. Минск ул. Пономаренко 35А офис 414 , ст. метро Пушкинская
мы в социальных сетях