Проектирование и строительство частных домов в Беларуси
Проектирование и строительство
частных домов в Беларуси

Проект дачного дома с 2 спальнями PPHouse 50-18

3D панорама
Отзыв клиента
  • Общая площадь: 52.12 м2
  • Количество этажей: 1
  • Высота дома: 6 м
  • Ширина дома: 7.2 м
  • Длина дома: 9.9 м
  • Площадь кровли: 114.570
  • 1
    3

Строительство:

BYN +
USD:
EUR:
RUB:
KZT:
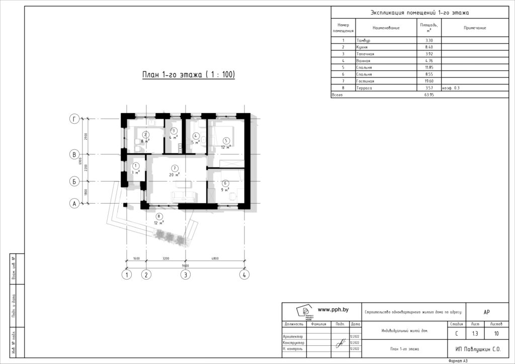
Планировка
Фасады
Описание

Проект одноэтажного дома PPHouse 50-18 — это идеальный вариант для семьи, которая ценит комфорт и функциональность.
Дом имеет удобную и практичную планировку, которая обеспечивает максимальное использование пространства. Площадью 50 квадратных метров и включает в себя 3 спальни, ванную комнату, гостиную, столовую и кухню.
Одной из главных особенностей этого дома является его современный дизайн, который отражает последние тенденции в архитектуре и интерьере. Фасад дома выполнен в светлых тонах и имеет минималистичный дизайн. Большие окна и просторная веранда позволяют наслаждаться живописными видами вокруг дома.
Внутреннее пространство дома уютно и функционально. Гостиная объединена с кухней и столовой, что обеспечивает максимальный комфорт и удобство для проведения времени с семьей и гостями.
Дом также оборудован современной системой отопления и кондиционирования воздуха, что обеспечивает максимальный комфорт и экономию энергии.

Рассчитайте стоимость проекта

- общие данные
- план посадки дома на участок
- план этажей
- кладочный план стен и перегородок этажей
- маркировочный план окон, дверей, этажей
- фасады
- цветовое решение фасадов
- разрезы
- план кровли

- общие данные
- фундамент
- план фундамента
- сечения фундамента
- перемычки
- схема расположения перемычек
- сечения перемычек
- монолитный пояс
- план монолитного пояса
- сечения монолитных поясов и балок
- перекрытие
- план плит перекрытий
- сечения монолитных участков перекрытия
- стропильная система
- схема расположения стропил
- план подстропильной системы
- развёртки стропильных ферм
- разрезы стропильной системы

- водоснабжение
- канализация
- отопление
- вентиляция и кондиционирование

Неотъемлемый элемент любого объекта, культурного наследия и даже частных домов и резиденций.
Без него любая задумка архитектора, очевидная при дневном свете, теряется, как только наступают сумерки.
С помощью световой концепции можно не просто создать ночной облик строения, а привнести новую идею, подчеркнуть архитектурные особенности здания, как будто надеть новое «платье» на фасад

- комплект чертежей для ремонта (план демонтажа конструкций, план монтажа конструкций, план теплых полов, план потолков, схема дверных проемов, план расположения розеток, план расположения светильников, план расположения выключателей, план расположения сантехнического оборудования, развертки стен по помещениям, план отделки)
- 3D Визуализации (фотореалистичные изображения интерьера)
- спецификация материалов (сводная ведомость использованных чистовых отделочных материалов, мебели, дверей, светильников с указанием наименования, количества, артикулов Общая площадь * 620

Стоимость полного проекта:
от 0 $
ИНДИВИДУАЛЬНЫЙ ПРОЕКТ ДОМА в подарок
Стройте с нами и мы подарим Вам архитектурный проект БЕСПЛАТНО
Забрать подарок
Рассчитайте стоимость индивидуального проекта А ТАКЖЕ СТОИМОСТЬ СТРОИТЕЛЬСТВА ВАШЕГО ОБЪЕКТА
ПРОЙДИТЕ ТЕСТ ИЗ 6 ВОПРОСОВ И ПОЛУЧИТЕ ВСЕ 3 ПОДАРКА ВЫГОДА ДО 1500 РУБ
Рассчитать и подобрать проект
Приезжайте к нам в офис прямо сейчас
График работы: Пн-Пт 9.00-13.00, 14.00-18.00, Сб-Вс-выходной.
Остались вопросы
+375291226664 Отдeл продаж
+375445321772 Партнерам
Присоединяйтесь к нам в социальных сетях
адрес: г. Минск ул. Пономаренко 35А офис 414 , ст. метро Пушкинская
Остались вопросы
+375291226664 Отдeл продаж
+375445321772 Партнерам
адрес: г. Минск ул. Пономаренко 35А офис 414 , ст. метро Пушкинская
мы в социальных сетях