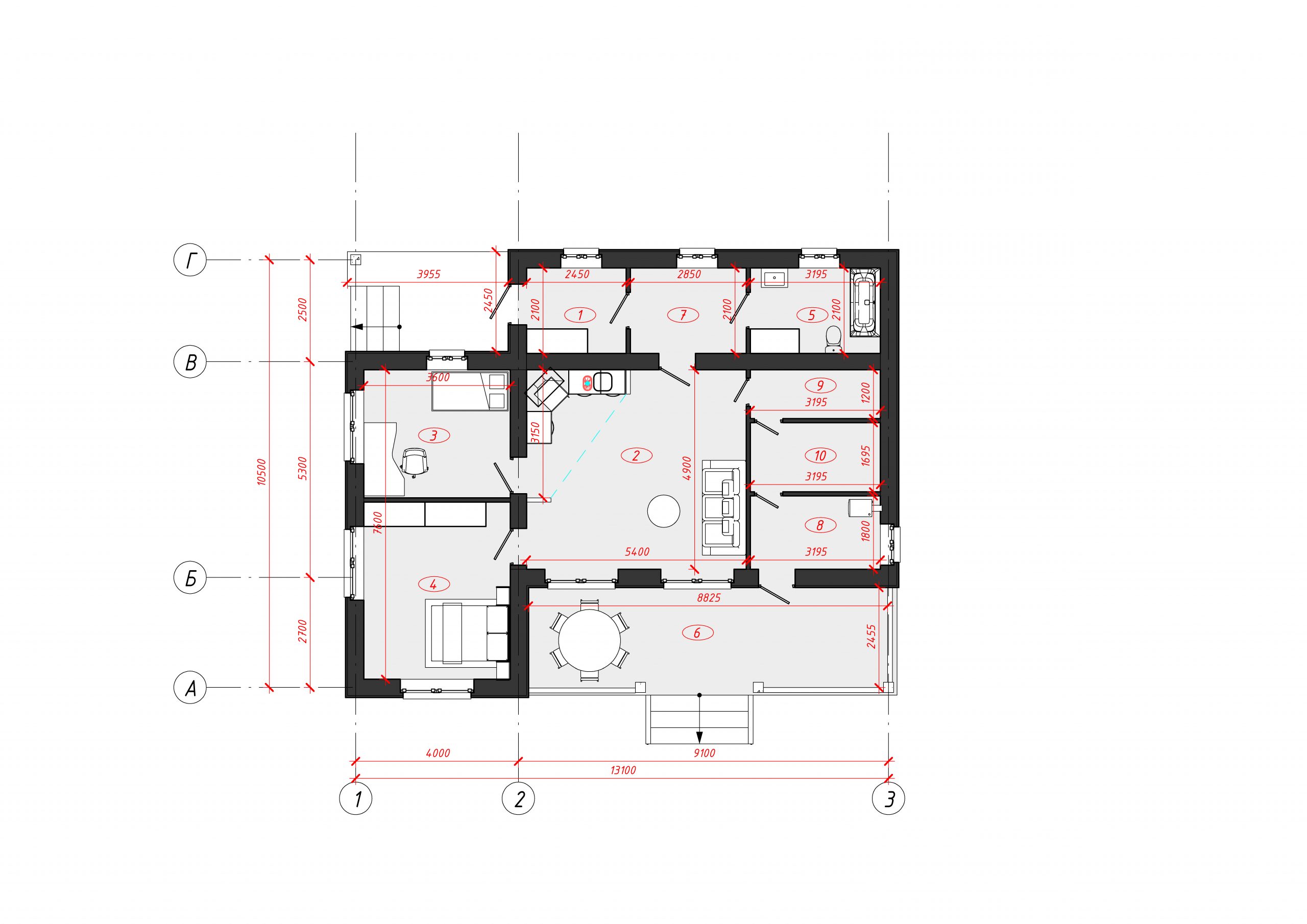
Проект представляет собой одноэтажный жилой дом с общей площадью 188,75 квадратных метров. Размеры дома составляют 10,5 метра на 13,1 метра, что обеспечивает достаточно пространства для размещения всех необходимых помещений и обеспечения комфорта проживания. 
Дизайн дома ориентирован на комфорт и функциональность. Планировка включает в себя две спальни, что идеально подойдет для семьи с одним или двумя детьми, или для пары, которая предпочитает иметь дополнительное пространство для гостей или для использования комнаты в качестве домашнего офиса.
Жилая площадь хорошо организована с акцентом на открытость и свет. Предусмотрена зона гостиной, столовой и кухни, объединенных в единое пространство, что создает чувство объема и свободы. При проектировании дома учитывались энергоэффективность и экологичность материалов.
Данный одноэтажный дом — это функциональное и уютное жилое пространство, идеально подходящее для современной семьи.                              
                            
 
            
           