Проектирование и строительство частных домов в Беларуси
Проектирование и строительство
частных домов в Беларуси

Проект одноэтажного небольшого дома с гаражом PPHouse 50-12

3D панорама
Отзыв клиента
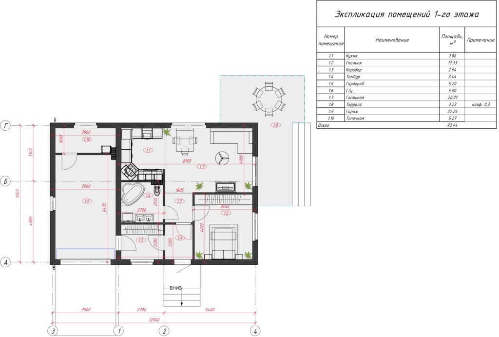
  • Общая площадь: 93.44 м2
  • Количество этажей: 1
  • Высота дома: 6.30 м
  • Ширина дома: 8.1 м
  • Длина дома: 12 м
  • Площадь кровли: 153
  • 1
    2

Строительство:

BYN +
USD:
EUR:
RUB:
KZT:
Планировка
Фасады
Описание

Проект PPHouse 50-12 представляет собой уютный одноэтажный дом с общей площадью 93,44 квадратных метров. Он разработан с учетом комфорта и функциональности, что делает его идеальным выбором для небольшой семьи или пары.
Планировка дома включает две спальни и один санузел, обеспечивая все необходимые удобства для жителей. Особое внимание заслуживает наличие встроенного гаража, который предлагает удобное и безопасное место для хранения автомобиля или другого транспортного средства, а также может служить дополнительным пространством для хранения.
Один из уникальных элементов этого дома - терраса. Это открытое пространство идеально подходит для отдыха на свежем воздухе, утреннего кофе или вечерних семейных ужинов на свежем воздухе.
Внутри предусмотрена открытая планировка с гостиной, столовой и кухней, обеспечивая максимальное использование пространства и света. Этот открытый дизайн создает просторное и светлое пространство, что придает дому привлекательность и уют.
Проект PPHouse 50-12 — это продуманный и хорошо спроектированный одноэтажный дом, который сочетает в себе комфорт, функциональность и эстетику.

Рассчитайте стоимость проекта

- общие данные
- план посадки дома на участок
- план этажей
- кладочный план стен и перегородок этажей
- маркировочный план окон, дверей, этажей
- фасады
- цветовое решение фасадов
- разрезы
- план кровли

- общие данные
- фундамент
- план фундамента
- сечения фундамента
- перемычки
- схема расположения перемычек
- сечения перемычек
- монолитный пояс
- план монолитного пояса
- сечения монолитных поясов и балок
- перекрытие
- план плит перекрытий
- сечения монолитных участков перекрытия
- стропильная система
- схема расположения стропил
- план подстропильной системы
- развёртки стропильных ферм
- разрезы стропильной системы

- водоснабжение
- канализация
- отопление
- вентиляция и кондиционирование

Неотъемлемый элемент любого объекта, культурного наследия и даже частных домов и резиденций.
Без него любая задумка архитектора, очевидная при дневном свете, теряется, как только наступают сумерки.
С помощью световой концепции можно не просто создать ночной облик строения, а привнести новую идею, подчеркнуть архитектурные особенности здания, как будто надеть новое «платье» на фасад

- комплект чертежей для ремонта (план демонтажа конструкций, план монтажа конструкций, план теплых полов, план потолков, схема дверных проемов, план расположения розеток, план расположения светильников, план расположения выключателей, план расположения сантехнического оборудования, развертки стен по помещениям, план отделки)
- 3D Визуализации (фотореалистичные изображения интерьера)
- спецификация материалов (сводная ведомость использованных чистовых отделочных материалов, мебели, дверей, светильников с указанием наименования, количества, артикулов Общая площадь * 620

Стоимость полного проекта:
от 0 $
ИНДИВИДУАЛЬНЫЙ ПРОЕКТ ДОМА в подарок
Стройте с нами и мы подарим Вам архитектурный проект БЕСПЛАТНО
Забрать подарок
Рассчитайте стоимость индивидуального проекта А ТАКЖЕ СТОИМОСТЬ СТРОИТЕЛЬСТВА ВАШЕГО ОБЪЕКТА
ПРОЙДИТЕ ТЕСТ ИЗ 6 ВОПРОСОВ И ПОЛУЧИТЕ ВСЕ 3 ПОДАРКА ВЫГОДА ДО 1500 РУБ
Рассчитать и подобрать проект
Приезжайте к нам в офис прямо сейчас
График работы: Пн-Пт 9.00-13.00, 14.00-18.00, Сб-Вс-выходной.
Остались вопросы
+375291226664 Отдeл продаж
+375445321772 Партнерам
Присоединяйтесь к нам в социальных сетях
адрес: г. Минск ул. Пономаренко 35А офис 414 , ст. метро Пушкинская
Остались вопросы
+375291226664 Отдeл продаж
+375445321772 Партнерам
адрес: г. Минск ул. Пономаренко 35А офис 414 , ст. метро Пушкинская
мы в социальных сетях